Din kurv er tom
Aluminium profil til Häfele Loox LED-bånd med en bredde på 10 mm.
Profilen fræses ind i dit møbel hvorefter LED-båndet lægges ned i profilen, hvilket giver et mere elegant og ensartet belysning, samt et mere fuldendt og integreret udseende til dit møbel.
Profilen er også med til at beskytte LED-båndet mod berøring og andet.
- Materiale: Aluminium
- Anvendelse: Til LED-bånd med bredde på 10 mm - Loox profil 1190
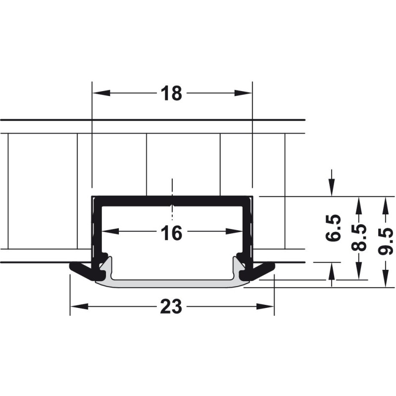
- Indvendige bredde: 16 mm
- Plastik front bredde: 16 mm
- Længde: 2500 mm
- Udfræsning bredde: 18 mm
- Udfræsning dybde: 6,5 mm
- Profil farve: sølvfarvet
- Plastik front farve: opal hvid
Alle mål ses på teknisk tegning i billeder.
Henvisning
Det er vigtigt at profilen rengøres fri for støv, snavs og fedt, før LED-båndet sættes fast til profilen med det selvklæbende tape.
Denne model kommer med en opal hvid front. Lyspunkterne fra LED-båndet er synlig gennem disse plastik fronter. Jo flere LED pr. meter på båndet, jo mindre ses punkterne igennem.
Indeholdt i leveringen
1 aluminium profil
1 plastik front

.png)












Din vurderings anerkendelse kan ikke sendes
Rapporter kommentarer
Rapport sendt
Din rapport kan ikke sendes