- Kæmpe udvalg
- Kvalitetsprodukter
- Fri fragt over 800,-

Häfele Slido F-Line42 50C er et skydedørsbeslag der kan monteres på aluminium rammer, eventuelt med glas. Ideel til store glasskabe.
Denne model passer til 2 låger. Kan også fås til 3 eller 4 låger. Se tilbehør.
Kan bruges til synkroniseret åbning af lågerne. Skydeskabsbeslaget kan fås så bundstyreskinnen sidder enten under bunden af skabskorpus eller på samme front som lågen.
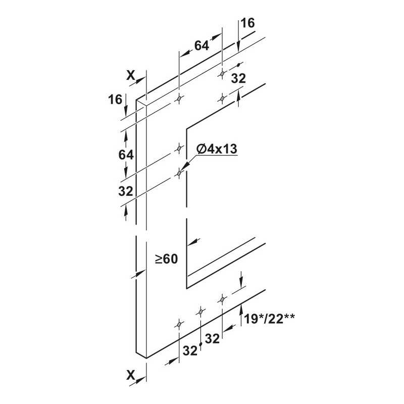
Aluminium ramme medfølger ikke. Denne skal du selv bygge efter de specifikationer, som passer til dit skab. Du finder materiale til konstruktion af aluminium ramme under tilbehør. Derudover kan du finde en montagevejledning under fanen download.
Interesseret i at vide mere generelt omkring skydedøre? Så klik her
- Antal låger: 2 låger
- Lågetykkelse: 16-20 mm eller 21-26 mm (se tabel)
- Lågevægt: Maks. 50 kg
- Med holdefjeder eller lukkedæmpning
- Materiale: Stål, aluminium og plastik
- Minimum ramme bredde: 60 mm
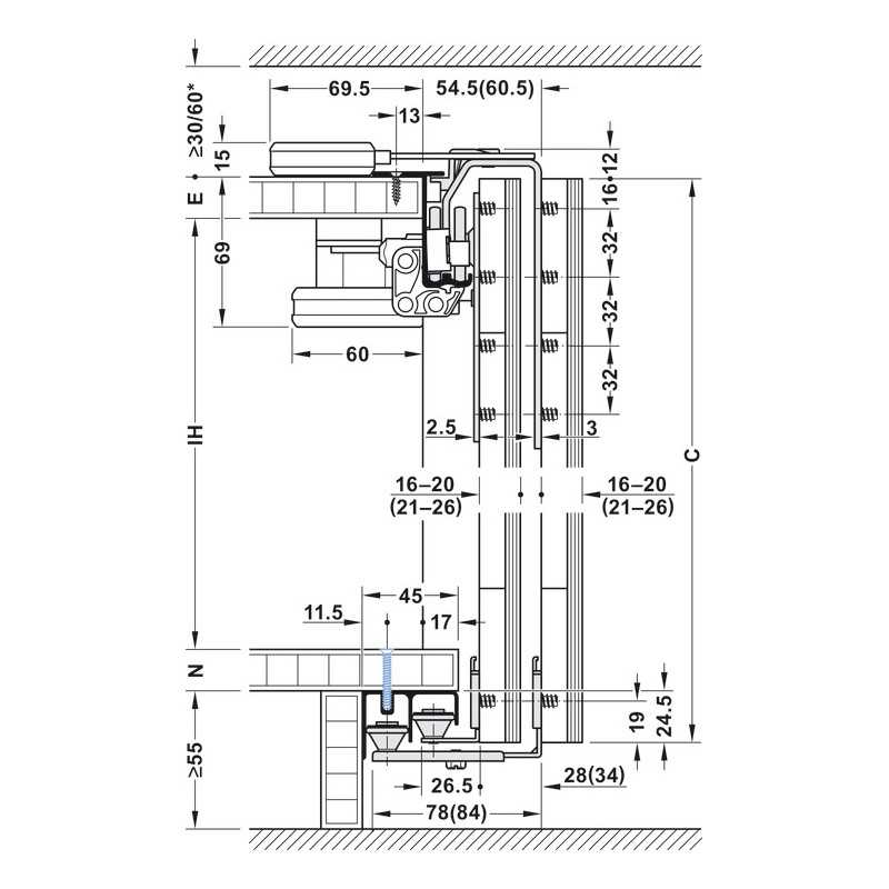
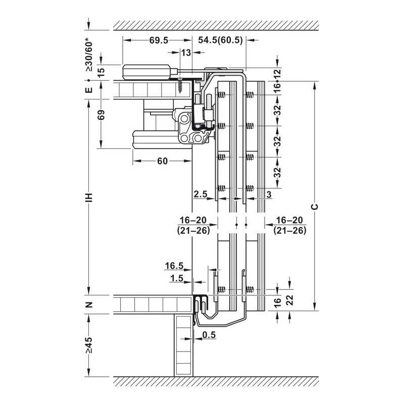
Se alle mål på den tekniske tegning. Dimensioner i parenteser passer til dørtykkelse 21-26 mm.
OBS! Skinner og aluminiumramme skal bestilles ved siden af! Find dem under tilbehøret under beskrivelsen her
Til dette udtræk skal du som minimum bruge:
- 1 top løbeskinne
- 1 bundstyreskinne (til montering på front eller under bundpladen)
- 1 aluminiumsramme
Beslaget vælges efter om bundskinnen skal monteres på fronten af skabet (samme side som lågen), eller under bundpladen, som vist på disse tegninger:
![]() | ![]() |
| Bundskinne monteret på front | Bundskinne monteret under bundplade |
Derudover skal der vælges dørtykkelse og om beslaget skal være med eller uden soft-close. Der er to modeller med soft-close, som vælges ud fra om du ønsker lukkedæmpning i begge ender af skydeskabsbeslaget, eller om du kan nøjes med lukkedæmpning i den ene side.
| Version | Skinne montering | Dørtykkelse, mm | Model | Leveringen indeholder |
| Med holdefjeder | Skinne monteres på front | 16-20 | A | 4 kørebeslag 4 styr 2 clip-in lågeanslag |
| 21-26 | B | |||
| Skinne monteres under bunden | 16-20 | C | ||
| 21-26 | D | |||
| Med soft-close på én side | Skinne monteres på front | 16-20 | E | 4 kørebeslag 4 styr 2 clip-in lågeanslag 2 soft-close mekanismer med lågemedbringer |
| 21-26 | F | |||
| Skinne monteres under bunden | 21-26 | G | ||
| Med soft-close på begge sider | Skinne monteres på front | 16-20 | H | 4 kørebeslag 4 styr 2 clip-in lågeanslag 3 soft-close mekanismer med lågemedbringer |
| Skinne monteres under bunden | 16-20 | I |
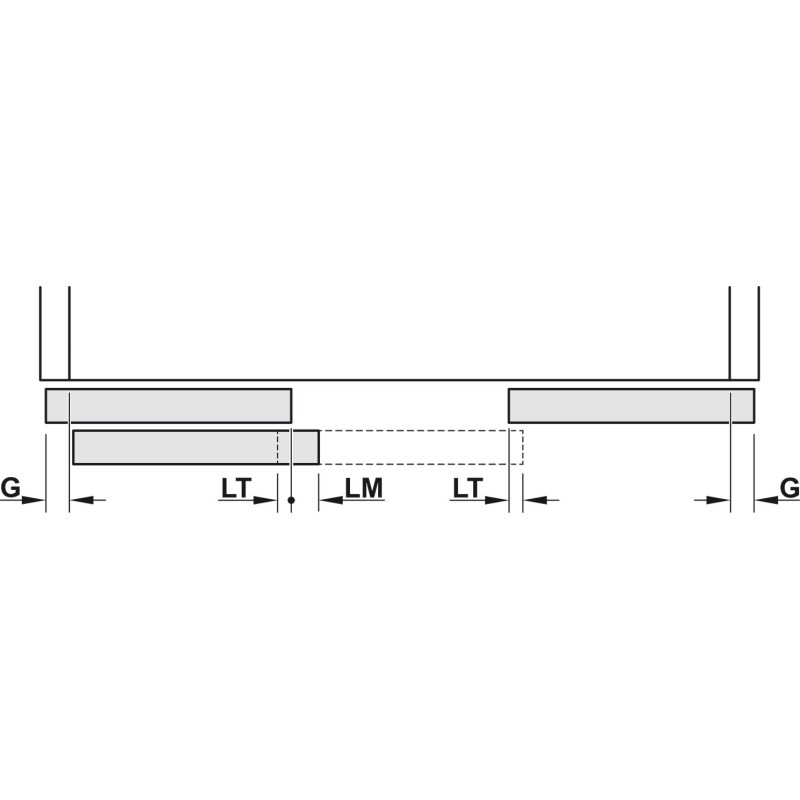
Bogstaverne på de tekniske tegninger svarer til følgende mål:
- C = Lågehøjde
- IH = Indvendig skabshøjde
- E = Skabets toppanels tykkelse (16 eller 19 mm)
- N = Skabets bundpanels tykkelse
- LM = låge forskydning (30 mm)
- LT = lågeoverslap (20 mm anbefalet)
- G = lågeoverlap
Beregning til lågehøjde ved version med skinne på front:
- C = IH + E + 15 mm
Beregning til lågehøjde ved version med skinne under bundplade:
- C = IH + E +N + 24,5 mm
Borebillede, indbygningsmål og tekniske tegninger ses under billeder

.png)














































Din vurderings anerkendelse kan ikke sendes
Rapporter kommentarer
Rapport sendt
Din rapport kan ikke sendes