Din kurv er tom
Skydedørsbeslag - Værd at vide
Skydedøre er noget mange af os har i vores hjem, uanset om det er store døre, der dækker for garderoben, eller et skab med små skydelåger foran.
Den her guide vil gå mere i dybden med de forskellige muligheder, der findes for skydedøre.
For én ting er at man køber et færdigt møbel i butikken, men har man mod på at gøre det selv, har man pludselig uanede muligheder!
Dog kan skydedøre som gør-det-selv projekt godt være noget af en mundfuld.
Der findes mange måder at sætte det op på, og samtidig kræver det som regel nogle skinner, som skal fræses ned i plader, hvilket det ikke lige er alle der har værktøjet til.
Men hvis du alligevel har mod på at kaste dig ud i det, så er det her et godt sted at starte.
Lad os kaste os ud i det :)
Typer af skydedørsbeslag
Der findes som sagt et hav af forskellige typer skydedørsbeslag. Herunder har jeg samlet de forskellige muligheder, som vi oftest bruger.
|
Planliggende FB |
|
Udenpåliggende front VF![]() |
|
Indeniliggende front IF![]() |
|
Miksfront MF![]() |
|
Uden og indeniliggende front![]() |
|
Foldelåger![]() |
|
Pocket Doors![]() |
|
I loftshøjde![]() |
|
Vertikale skydedøre![]() |
|
Jalousier![]() |
|
Nogle af de ovenstående løsninger er kun brugt i sjældne tilfælde, men om ikke andet så er der løsninger at finde, hvis dit projekt påkræver det.
Med det på plads, kan vi kigge lidt nærmere på nogle af de tekniske begreber, der bliver anvendt, når vi snakker skydedørsbeslag.
Termer og begreber for de forskellige dele
Når du kigger på skydedørsbeslag, vil du måske støde på nogle begreber, som du ikke kender.
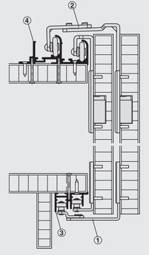
Lad os prøve at tage et kig på et typisk skydedørsbeslag, og hvor de forskellige dele er placeret henne.
![]() |
1) Styr |
|
2) Kørebeslag |
|
| 3)Styreskinne Styreskinnen er nødvendig for at styre lågen vertikalt og for at sikre imod vridning. Den fremstilles oftes af aluminium. Dog findes de også i kunststof. |
|
| 4)Løbeskinne Løbeskinnerne bestemmer lågernes bevægelsesretning. Det er her kørebeslagene hægtes eller klikkes på. Skinnerne fremstilles oftes i aluminium, men også i stål. Et mere lydløst løb opnås med skinner i aluminium. |
|
![]() |
Dæmpning Ofte er dæmpning integreret i beslaget, og dæmper herved lågernes løb når de bevæger sig i retning af endepositionen. Det er dog også muligt at montere dæmpere på korpus. Med dæmpningssystemer (lukkedæmpning) lukkes lågerne lydløst og trækkes til endepositionen. På den måde skånes skab og beslag, og møblets levetid forlænges. |
![]() |
Elektrise drivenheder Mange af beslagene til udenpåliggende front fås også i en elektrisk drevet variant, som altid nemt kan eftermonteres for at give større komfort. Det gør at låger nemt åbnes og lukkes ved et tryk på en knap. Dette er særligt velegnet til store og tunge låger, eller til personer der ikke er fuldt mobile. |
![]() |
1) Buffer 2) Lågeanslag 3) Holdefjeder 4) Bundstyr |
![]() |
Synkron/symetrisk åbning |
Klar til at sætte din skydedør op?
Vent lige lidt, for vi har lige et vigtigt emne endnu. Vi skal nemlig lige kigge lidt på vægten af lågerne.
Vægt på låger
Vægten og ikke mindst materialet på dine låger er vigtigt, da lågerne ofte hænger i toppen, og kun styres i bunden.
Derved kan noget materiale komme til at bøje under for meget vægt, samt skydedørsbeslag kun er begrænset til en bestemt vægt (angivet på hvert produkt).
Lad os kigge lidt nærmere på hvad vægten har af betydning for din skydedør
![]() |
Lågens vægt er vigtig for valg af de rigtige beslag. Basismaterialets massefylde og specifikke egenskaber skal være kendte og tages i betragtning. F.eks. vejer en spånplade mindre end en MDF plade pga. dens lave tæthed. Hvis et spejl anbringes på en låge, skal spejlets vægt samt vægten af de anvendte beslag (greb, udretningsbeslag, dørbeslag) tages i betragtning ved beregning af lågens vægt. |
![]() |
MDF-pladen er med sin høje tæthed væsentlig mere stabil end en spånplade og vrides derfor ikke så let. Ved meget store låger og materialer, der har tendens til vridning, skal der enten bruges et udretningsbeslag, eller sættes en afstiver på. Et udretningsbeslag kan også udrette en låge, som allerede er forvredet. |
![]() |
Ved konstruktion af lågen skal følgende altid tages i betragtning: 1) Lågens højde må ikke være mere end 3 gange dens bredde |
Beregning af lågens vægt
Så, hvordan regner du lige vægten ud på din låge, uden at skulle have den på en vægt?
Det er faktisk ret simpelt, vi behøver kun at kende materialets vægtfylde. Dette kan vi ofte finde på Google.
Ellers kan du læse en længere beskrivelse her: Udregn vægten på din låge
Helt kort skal vi bruge regnestykket: Højde x Bredde x Tykkelse x vægtfylde m3
Det vigtige er at alle mål skal være angivet i metermål!
Lad os tage et eksempel med en låge i 19 mm tyk MDF med følgende dimmensioner:
- Højde: 2000 mm = 2 meter
- Bredde: 1000 mm = 1 meter
- Tykkelse: 19 mm = 0,019 meter
- MDF vægtfylde: ca. 700 kg/m3
Udregningen går derfor som følgende: 2 x 1 x 0,019 x 700 = 26,6 kg.
Justering af låge
Det er ikke altid, at det hænger helt lige, når lågen kommer op.
Derfor er det vigtigt at kigge efter justeringsikonerne på skydedørsbeslagene. Disse fortæller, om døren kan justeres eller ej.
Det er vigtigt, at løbeskinnen er placeret helt horisontalt, så den ikke selv løber til en af siderne.

Montagemetoder for kørebeslag
Skydedøre kan enten 'køre foroven' eller 'køre fornede', dvs. at kørebeslaget og løbeskinne til skydedørsbeslaget enten placeres på toppladen eller på bundpladen. Derudover monteres et styr modsat kørebeslagene i top eller bund.
![]() |
Vælger man et beslag der kører foroven, monteres skinnen på toppladen og hele lågens vægt overføres til toppladen. Derfor er det vigtigt under konstruktionen at sikre tilstrækkelig fordeling af lågevægten eller brug af støttende mellemvægge for at undgå nedbøjning af toppladen og dermed løbeskinnen. |
![]() |
Beslag der kører forneden anvendes ofte til meget tunge låger, eller hvis konstruktionen ikke tillader at lågen kører foroven. Her monteres løbeskinnen i bundpladen, og lågevægten overføres via bundpladen til soklen i gulvet. Denne type konstruktion er meget stabil. |
Det var en større omgang, men jeg håber, at du er blevet lidt klogere på, hvilke muligheder de forskellige typer af skydedørsbeslag giver.
Du kan hoppe over på shoppen og se alle vores skydedørsbeslag nu.
Du er selvfølgelig også velkommen til at tage fat i os, hvis du har spørgsmål til noget af det :)


.png)































